數據中心設計如何防火
3.1 園區規劃
(1)防火間距
多棟數據中心的防火措施主要是加大建筑物之間的間距。防火間距主要是指防止著火建筑在一定時間內引燃相鄰建筑。規范規定的防火間距如下圖所示:


(2)儲油罐
控制燃油閃點(丙類)、容量和總儲量,直埋地下。埋地油罐與建筑之間的防火間距:單罐容量不大于50立方米、總儲量不大于200立方米時與建筑物和園區道路最小間距如下圖:

大于200m³埋地油罐,分組布置滿足間距不小于20米。
(3)消防車道
占地面積大于3000平米的丙類廠房、高層民用建筑、高層工業建筑均應設置環形消防車道。
高層建筑應至少沿一個長邊或周長1/4且不小于一個長邊設置消防車登高場地。


3.2 建筑耐火
耐火極限:建筑構件受到火災作用時,到失去承載力、完整性、隔熱性所用的時間。
數據中心的耐火等級不應低于二級。
3.3 建筑室內裝修的防火
數據中心主機房的頂棚、壁板和隔斷應為不燃燒體(A級),且不得采用有機復合材料。地面及其他裝修應采用不低于(難燃 )B1級的裝修材料。當數據中心與其他功能用房在同一個建筑內時,數據中心與建筑內其他功能用房之間應采用耐火極限不低于2.0h的防火隔墻和1.5h的樓板隔開,隔墻上開門應采用甲級防火門。

由《建筑防火通用規范》GB55037-2022可知前室、樓梯間、配電間、消防水泵房等設備房間的墻頂地應采用A級材料。規范條文如下:
6.5.3下列部位的頂棚、墻面和地面內部裝修材料的燃性能均應為A級:
1.避難走道、避難層、避難間;
2.疏散樓梯間及其前室;
3.消防電梯前室或合用前室。
6.5.4消防控制室地面裝修材料的燃燒性能不應低于B1級,頂棚和墻面內部裝修材料的燃燒性能均應為A級。下列設備用房的頂棚、墻面和地面內部裝修材料的燃燒性能均應為A級:
1.消防水泵房、機械加壓送風機房、排煙機房、固定滅火系統鋼瓶間等消防設備間;
2.配電室、油浸變壓器室、發電機房、儲油間;
3.通風和空氣調節機房;
4.鍋爐房。
設置區域圖片示意如下:

而對于樓梯間、前室的內墻粉刷材料而言,《建筑內部裝修設計防火規范》第3.0.6條規定:施涂于A級基材上的無機裝修涂料,可作為A級裝修材料使用;施涂于A級基材上,濕涂覆比小于1.5kg/m²,且涂層干膜厚度不大于1.0mm的有機裝修涂料,可作為B1級裝修材料使用。無機裝修涂料施涂于A級基材上,可達到A要求。所以,所有建筑的交通核及設備房的頂棚和內墻,若使用涂料時,需選用“無機裝修涂料”。
因此,對于涂料的使用:
1.所有的交通核門廳、設備房、地下車庫等公共空間的頂棚和內墻,必須使用無機裝修涂料;
2.對于公共建筑,幾乎所有建筑的頂棚和部分墻面,也都必須使用無機裝修涂料。
3.4 建筑內防火分區
建筑內阻止火災蔓延的有效方法之一就是在建筑內劃分防火分區。
建筑內劃分防火分區面積如下表所示:
(1)工業建筑防火分區面積:(當建筑物內設置自動滅火系統時,防火分區面積可增加一倍。)

民用建筑防火分區面積:(當建筑物內設置自動滅火系統時,防火分區面積可增加一倍。)

3.5 建筑疏散設計
當建筑著火的時候建筑疏散設計的要點之一就是安全出口(樓梯、首層門)足夠近。
當數據中心按照廠房進行設計時,數據中心的火災危險性分類應為丙類,數據中心內任一點到最近安全出口的直線距離不應大于表 13.2.2的規定。當主機房設有高靈敏度的吸氣式煙霧探測火災報警系統時,主機房內任一點到最近安全出口的直線距離可增加50%。

當數據中心按照民用建筑設計時,直通疏散走道的房間疏散門至最近安全出口的直線距離不應大于表 13.2.3-1的規定各房間內任一點至房間直通疏散走道的疏散門的直線距離不應大于表 13.2.3-2的規定。建筑內全部采用自動滅火系統時,采用自動噴水滅火系統的區域,安全疏散距離可增加25%。

建筑面積大于120平米的主機房,疏散門不應少于兩個,并應分散布置。建筑面積不大于120平米的主機房或位于袋形走道盡端、建筑面積不大于200平米的主機房,且機房內任一點至疏散門的直線距離不大于15m,可設置一個疏散門,疏散門的凈寬度不應小于1.4m。主機房的疏散門應向疏散方向開啟,應自動關閉,并應保證在任何情況下均能從機房內開啟。走廊、樓梯間應暢通,并應有明顯的疏散指示標志。

3.6 結構防火設計
(1)鋼筋混凝土材料和砌體材料
根據不同耐火等級,要求結構構件具有不同的燃燒性能和耐火極限。具體如下圖所示:

混凝土材料和砌體材料自身的燃燒性能和耐火極限見下圖:

(2)鋼結構防火
1.防火設計:鋼結構應按結構耐火承載力極限狀態進行耐火驗算和防火設計。可采用耐火極限法、承載力法或臨界溫度法。通俗講,就是采用計算耐火時間不小于設計耐火時間、計算火災下構件的承載力不小于設計荷載或火災下構件的最高溫度不高于構件臨界溫度的方法實現鋼結構的防火滿足設計要求。


2.防火保護措施和構造措施:可采用下列措施的一種或幾種組合:噴涂(抹涂)防火涂料、包覆防火板、包覆柔性氈狀隔熱材料、外包混凝土、金屬網抹砂漿或砌筑砌體。室內隱蔽構件,宜選用非膨脹型防火涂料;設計耐火極限大于1.5h的構件,不宜選用膨脹性防火涂料。非膨脹防火涂料圖層的厚度不應小于10mm。膨脹型的產品采用有機樹脂、發泡劑等制作而成;非膨脹型的產品采用的難燃或不燃的無機絕熱材料制作而成。膨脹型的產品遇火會膨脹,通過膨脹后的多空炭質層進行隔熱防火;非膨脹型的產品遇火不膨脹,是通過本身的隔熱涂層進行隔熱防火。一般膨脹型的產品耐火性為1-2小時,非膨脹型的為2-3小時。

3.7 電氣防火設計
電氣防火措施主要有:數據中心會在機房內設置動力環境監控系統,通過模塊跟傳感器實時監測配電柜、UPS機柜及空調等設備的狀態,及時發現問題,通知相關人員處理。在儲油間設置可燃氣體探測器,實時監測空氣中的可燃氣體濃度。

安裝感煙和感溫火災探測器:既可以檢測煙霧,也可以檢測溫度變化,需要安裝在房間的高處或中部,以便能夠檢測到煙霧和溫度的變化。在機房內設置吸氣式感煙火災探測器,是一種能夠在火災發生早期階段識別和報警的設備它通過非常敏感的光學傳感器來監測空氣中的微小煙霧顆粒。這種系統的工作原理是采集空氣樣本,并對樣本中的煙霧顆粒進行分析,從而探測任何可能的火災。

設置消防電源監控,監測消防設備供電的交流或直流電源(包括主、備電)發生過壓、欠壓、缺相、過流、中斷供電故障時,消防電源監控器進行聲光報警、記錄,設置電氣火災監控,對電氣線路及設備中的剩余電流等電氣參數等,信息進行采集、分析、判斷,同時發出報警信號并存儲、打印報警信息等基本功能。
3.8 防雷設計
接地系統:數據中心應建立完善的接地系統,包括工作接地、保護接地和防雷接地等。接地電阻應符合相關規定,以確保雷電流能夠順利導入地下。接地線應有足夠的截面積和絕緣耐壓強度,同時應采取多重備份和相互冗余的設計,以確保系統的穩定性和可靠性
防雷設備:數據中心應安裝避雷針、避雷帶、避雷網等防雷設備,以防止直接雷擊對建筑物和設備造成損害。防雷設備的規格和型號應符合相關標準和規定,同時應具備合格證書和檢測報告。

防雷保護:數據中心應采取多級防雷保護措施,包括電源系統和信號線路的防雷保護。各形成完整的防雷系統。對于重要設備和線路,應采取更加嚴級防雷設備之間應相互配合格的防雷措施,如加裝浪涌保護器等。
防雷檢測和維護:數據中心應定期進行防雷檢測和維護,檢查接地電阻、防雷設備的工作狀態等,以確保防雷系統的可靠性和有效性。對于發現的問題和故障,應及時進行修復和處理,避免影響數據中心的正常運行。

3.9 防靜電設計
地板:數據中心的地板應具備導靜電性能,可以有效釋放和導走靜電。地板可以采用防靜電地板或導靜電活動地板,材料應具備足夠的機械強度和化學穩定性。地板的表面電阻值應符合相關規定,以滿足防靜電的要求。
墻面:數據中心的墻面應采用不易產生靜電的材料,如采用抗靜電涂料等。同時,墻面應具備防塵性能,以保持清潔和良好的工作環境。

設備:數據中心的設備應具備接地功能,可以將靜電導入地下。設備的外殼應采用導靜電材料,以防止靜電在設備表面積累。設備的接地電阻值應符合相關規定,以確保靜電能夠順利導入地下。
人員:數據中心的工作人員應穿著防靜電工作服和防靜電鞋,以防止人體帶電對設備造成損害。同時,工作人員應定期進行防靜電培訓,了解防靜電知識和操作規程。

濕度控制:數據中心應保持適當的濕度范圍,一般為40%-60%。濕度過高會導致設備受潮損壞,濕度過低則容易引起靜電積累。
監控系統:數據中心應建立完善的靜電監控系統,對各區域的靜電情況進行實時監測和記錄,一旦發現異常情況,應及時采取措施進行處理。

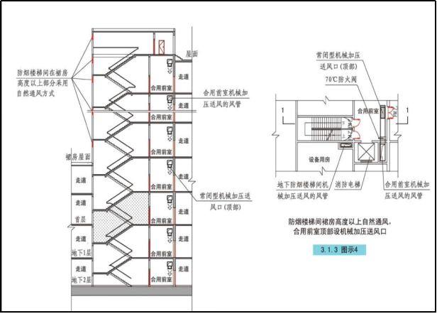
3.10 防煙設計
建筑物內的防煙樓梯間及其前室、消防電梯間前室或合用前室、避難層中的避難區域與連接走道、避難間、避難走道、專用消防通道等,都是建筑物著火時的安全疏散、救援通道。火災時,可通過開啟外窗等自然排煙設施將煙氣排出,亦可采用機械加壓送風的防煙設施,使煙氣不致侵入疏散通道或疏散安全區內。


3.11 排煙設計
除不適合設置排煙設施的場所、火災發展緩慢的場所可不設置排煙設施外,工業與民用建筑的下列場所或部位應采取排煙等煙氣控制措施:建筑面積大于300m²,且經常有人停留或可燃物較多的地上丙類生產場所,丙類廠房內建筑面積大于300m²,且經常有人停留或可燃物較多的地上房間;除高溫生產工藝的丁類廠房外,其他建筑面積大于5000m²的地上丁類生產場所;建筑面積大于1000m²的地下或半地下丁類生產場所;建筑面積大于300m²的地上丙類庫房;建筑高度大于32m的廠房或倉庫內長度大于20m的疏散走道,其他廠房或倉庫內長度大于40m的疏散走道,民用建筑內長度大于20m的疏散走道。


3.12 設備防火設計
機房應采用非燃或難燃材料,材料燃燒性能應符合GB50222-1995《建筑內部裝修設計防火規范》的有關規定。《建筑防火設計規范》9.3.14規定了通風、空調系統的風管應采用不燃材料,通常采用鍍鋅鋼板。采用難燃材料作為風管材質,通常為復合材料風管,為保證復合材料風管整體性能達到A級不燃。9.3.15規定設備和風管的絕熱材料宜采用不燃材料;用于加濕器的加濕材料、消聲材料及其粘結劑,宜采用不燃材料,確有困難時,可采用難燃材料。

